前滩中心位于上海市浦东新区海阳西路555号,是前滩地区最高建筑,建筑高度达280米。该项目由陆家嘴集团全资控股,于2020年第三季度竣工,前滩中心地上56层,地下3层,单层面积约3300-3600㎡,定位为超高层智能化甲级办公楼。占地面积约8万平方米,地上建筑面积 32 万平方米,总建筑面积接近 50 万平方米,涵盖了一栋 280 米区域地标国际甲级写字楼、由太古集团和陆家嘴集团强强联手打造的 12 万方大型购物中心前滩太古里以及约 6 万平的五星级酒店香格里拉大酒店。前滩中心还设有会议中心、商业单元和健身中心。
前滩中心位于东方体育中心站上盖,与6/8/11号线无缝衔接。周边规划二层空中连廊,连接16.6万平方米建筑群,与前滩太古里共同构成城市综合体。
前滩中心由美国KPF建筑事务所设计,其总裁詹姆斯·冯·克伦佩雷尔以“树”为设计核心理念。前滩中心建筑外立面采用波浪形铝板与木纹元素,塔冠造型模拟开枝散叶形态。大堂挑高6.8米,运用三维建模技术解决异形曲面施工难题。塔冠部分设置26米高观光屋面,采用分体吊装和BIM技术实现高空幕墙精准安装。
项目采用异形曲面铝板外贴防火木皮工艺,大堂钢结构精度误差控制在2毫米以内 [1]。泛光照明设计以“自然生长”为概念,垂直线性灯光勾勒建筑轮廓,获2021白玉兰照明奖 [2]。
前滩中心于2022年获中国建设工程鲁班奖,其照明设计入选2021白玉兰照明奖(建筑高度近280米)。
前滩中心楼内配备41部客梯及VIP电梯,顶层设高端餐厅High·沄涧,需经预约电梯系统抵达。项目与五星级酒店、前滩太古里商场形成商业集群。
截至2025年4月,前滩中心出租率已近95%,吸引近300家企业入驻,包括31家跨国公司地区总部,外企占比超六成。2024年3月陆家嘴集团发布“陆家嘴大朋友圈”战略,整合商务空间、租赁公寓等资源板块,向前滩中心租户提供优惠服务。项目获得LEED O+M铂金级认证,设有塔冠屋顶花园等公共空间。

上图为前滩中心外观
大厦信息
大楼名称:前滩中心 竣工时间:2021年 邮编:200126
地址:浦东新区海洋西路555号 所属商圈:前滩 所属街道:三林镇
总建筑面积:50万㎡ 标准层面积: 3247-3558㎡ 最小分割面积:472㎡
开发商:陆家嘴集团 物业公司:自持物业 是否可注册:是
租金价格: 5-7元/㎡/天 物业费:40元/㎡/月
总楼层:65层 层高:3米
车位数量:约1000个 车位费: 1000元/月
电梯数量:27部客梯 网络:电信、联通、移动
空调:中央空调 空调开放时长:周一到周五早上8:00~18:30,周六日早8:00~12:00
得房率:70% 绿化率:10% 容积率:1.5
大厦租赁面积
472㎡、483㎡、492㎡、659㎡、1354㎡、1232㎡、3247㎡

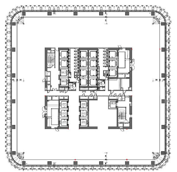
上图为前滩中心写字楼平面图
交通出行
地铁: 6/8/11号线东方体育中心站地铁上盖
机场:距离上海浦东国际机场38公里,驾车需38分钟,距离上海虹桥国际机场18公里,驾车需24分钟
火车站:距离上海火车站13公里,驾车需要20分钟,距离上海虹桥火车站18公里,驾车需要22分钟
公交站:前滩大道海阳西路(公交站)、前滩大道耀体路(公交站)、东育路杨思西路(东方体育中心)(公交站)、高青路东育路(公交站)、杨思西路耀体路(公交站)、耀体路杨思西路(公交站)、耀体路平家桥路(公交站)、海阳西路江耀路(公交站)、高青西路江高路(公交站)、耀龙路泳耀路(公交站)、耀龙路耀体路(公交站)、济阳路泳耀路(公交站)、泳耀路济阳路(公交站)、海阳路长清路(公交站)、灵岩南路凌兆路(公交站)、德州路长清路(公交站)、长清路华夏西路(公交站)、灵岩南路海阳路(杨思中学)(公交站)、华夏西路灵岩南路(公交站)、上南路海阳路(公交站)、企耀路济阳路(公交站)、杨南路上南路(公交站)、灵岩南路杨思路(公交站)、杨思路灵岩南路(公交站)、长清路凌兆新村(公交站)、海阳路西营南路(公交站)、凌兆路灵岩南路(公交站)、芋秋路翠溪路(公交站)、海阳路上南路(公交站)、杨思路西营南路(公交站)
公交线路:174 路、84 路、986 路区间、1007 路、地铁 6 号线、地铁 8 号线、地铁 11 号线、地铁 11 号线支线

上图为前滩中心地理位置
周边配套
餐饮:High症·楗澇绮涧 By 光与盐(前滩中心店)、胜紫云亭 HUAIYANG MASTER(前滩店)、大八屋顶牛排馆LargeEight Steak 、香聚江南灶中餐厅(前滩香格里拉店)、御延公馆·上海菜(晶耀前滩店)、道海元·潮粤汇(前滩店)、云庐小雅(前滩店)、山海潮顺德府宴、青山澜·日本料理(前滩店)、半山腰·云南菜(前滩太古里店)、晶悦荟·海派融合(前滩店)、提督臻选·TIDU RESERVE(前滩太古里店)、% Arabica阿拉比卡咖啡(前滩太古里店)、锦府园(西岸梦中心店)、甬府尊鮮(前滩太古里店)、福禧楼 FUK HEILAU(前滩太古里店)、黄鱼馆(前滩店)、十里湘荟(前滩太古里店)、虹潮荟·荣·餐桌上的美食地理(西岸梦中心店)、尺花园(前滩友城公园店)、芙蓉噂猝·湘风酒肆(西岸梦中心店)、千两(前滩太古里店)、BROWNSTONE布朗石西班牙餐厅(前滩太古里店)、Le Chloe French Brasserie(上海金普顿前滩酒店)、Mozzarella e Vino(西岸梦中心店)、BoboLEE Garden(前滩太古里店)、LENBACH WESTBUND 兰巴赫(西岸梦中心店)、惠食佳·朱雀(晶耀前滩店)、博茶思酒(前滩店)、悦江瓷耕颂餐厅(前滩店)、必褔楼潮汕菜·潮汕茶、鸟尨(páng)Toribund(西岸梦中心店)、潮界(晶耀前滩店)、龟兹KUCINA·新疆菜(前滩L+PLAZA店)、楼上荟馆(前滩太古里店)、海澜湾·渔港(前滩店)、春里·淮扬(西岸梦中心店)、望庐·精细江西菜(前滩信德中心店)
购物:前滩太古里、Lake Poets湖畔诗人花艺工作室、前滩L PLAZA、前滩31、GATE M西岸梦中心、MOMO ERA STUDIO(前滩店)、TU设计师品牌(晶耀前滩店)、adidas(滔搏GateM西岸梦中心店)、Gabriel伽百利(晶耀前滩店)、华致名酒库雪茄名烟(前滩店)、Tagi(西岸梦中心店)、库布里克Kubrick书店(前滩太古里店)、CGX轻户外(西岸梦中心店)、Garmin佳明(西岸梦中心店)、GENTSPACE(前滩太古里店)、Gucci(上海前滩太古里店)、MAMMUT猛犸象(前滩太古里店)、FloraFusion(晶耀前滩店)、Songmont山下有松(前滩太古里店)、Bonpoint(前滩太古里店)、Steiff史戴芙(前滩太古里店)、MONCLER(前滩太古里店)、Snow Peak(前滩太古里店)、alexanderwang(前滩太古里店)、MIKIMOTO(前滩太古里店)、EX1.T(西岸梦中心店)、单农(前滩太古里店)、maje(前滩太古里店)、Sandro(上海前滩太古里店)、Lavas(西岸梦中心店)、Maison Margiela(前滩太古里店)、1.T(前滩太古里店)、UNDEFEATED(西岸梦中心店)、Ami(前滩太古里店)、LOEWE 罗意威(前滩太古里店)、TREK&TRAVEL GERMANY(晶耀前滩北区店)、Mardi Mercredi(前滩太古里店)、UODYCOCO有蒂棵棵(西岸梦中心店)、UGG(前滩太古里店)、STUART WEITZMAN(前滩太古里店)、The Blender(西岸梦中心店)、Acne Studios(前滩太古里店)、THE LAUNDRESS(前滩太古里店)、SND(前滩太古里店)、
银行:中国银行(前滩支行)、中国工商银行(上海市德州路支行)、中国农业银行(上海前滩支行)、招商银行24小时自助银行、招商银行(前滩支行)、中国工商银行(上海市杨思支行)、中信银行(前滩支行)、浦发银行(前滩支行)、中国工商银行24小时自助银行(德州路支行)、中国建设银行(灵岩南路支行)、平安银行(前滩支行)、中国工商银行ATM(森宏购物广场)、招商银行24小时自助银行(杨思支行)、中国银行(上海市西营路支行)、中国农业银行(上海灵岩路支行)
学校:上海惠灵顿外籍人员子女学校、上海纽约大学(前滩校园)、上海民办位育中学、华二初中部、民办惠立学校、华东师范大学第二附属中学前滩学校、上海市杨思高级中学、杨思小学、上海市杨思中学(北校区)、华东师范大学第二附属中学前滩学校(前耀校区)、大桥小学、凌兆小学、上海纽约大学教学大楼、白玉兰小学(三杨校区)
医院:悦牙口腔·矫正·美白·儿牙中心(前滩店)、曜影医疗-中医科(前滩世贸门诊部)、悦牙口腔·种植·矫正·儿牙中心(上南路旗舰店)、优复医疗UP Clinic诊所(前滩院区)、莱佛士医院-健康管理部团、上海幸元会门诊部(前滩店)、泰康拜博口腔(晶耀前滩仁尔店)、幸元会·瑞慈医疗旗下高端体检品牌(前滩店)、曜影医疗(前滩世贸门诊部)、瑞泰口腔(前滩分院)、上海莱佛士医院、摩瓦口腔·美学牙齿贴面·种植牙·矫正联合中心、丽齿康口腔(长清路旗舰店)、华齿口腔(上南路店)、康植口腔(灵岩南路旗舰店)
停车场:前滩世贸中心1期-地下停车场、上海东方体育中心-地下停车场、前滩东方广场1期-地下停车场、前滩体育公园-停车场、前滩体育公园-4号门停车场、前滩企业天地-停车场、前滩友城公园-停车场、上海前滩香格里拉大酒店-停车场、上海东方体育中心-P1停车场、前滩时代广场-地面停车场、上海东方体育中心-P2停车场、前滩太古里木区停车场、前滩L+PLAZA-地下停车场、前滩指挥部停车场、上海东方体育中心-B1停车场
入驻企业
普华永道管理咨询(上海)有限公司、上海七猫文化传媒有限公司、普华永道商务服务(上海)有限公司、上海幻想七猫数字技术有限公司、沙电投资(上海)有限公司、德州仪器半导体技术(上海)有限公司、普华永道税务师事务所(上海)有限公司、上海朱雀枫域投资有限公司、天鲜配(上海)科技有限公司、上海朱雀资产管理有限公司、朱雀股权投资管理有限公司、上海天演私募基金管理有限公司、武田亚太生物医药研发有限公司、上海幻想七猫互联网技术有限公司、上海朱雀壬寅私募投资基金合伙企业(有限合伙)、上海新朱雀投资中心(有限合伙)、上海朱雀戊辰管理咨询合伙企业(有限合伙)、上海三星半导体有限公司、上海同创伟业共享创业投资合伙企业(有限合伙)、上海宽桥恒松私募投资基金合伙企业(有限合伙)、陆家嘴国泰人寿保险有限责任公司、上海百推网络科技有限公司、上海氢新管理咨询合伙企业(有限合伙)、上海绣回企业管理合伙企业(有限合伙)、上海鼎卉实业有限公司